anta tutto vetro
Account
Login
Sign in
Info
Contact Metalglas
Legal notes
English
Italiano
Deutsch
Français
Español
Home
Search
Assets
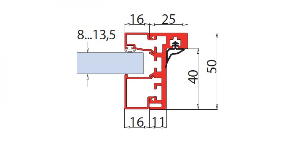
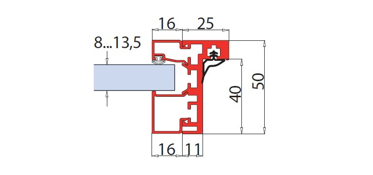
P-030-V
Door frame for hinged door
Product Sheet
P-030-V DATA SHEET
Order form
Order form P-030
Product family
ALUMINIUM FRAMES WITH FIXED SIDE PANELS COMPLETE FAMILY
Related products
P-058 | P-059
PO-100 da sostituire con nuove midori
PO-200 da sosituire con nuove midori